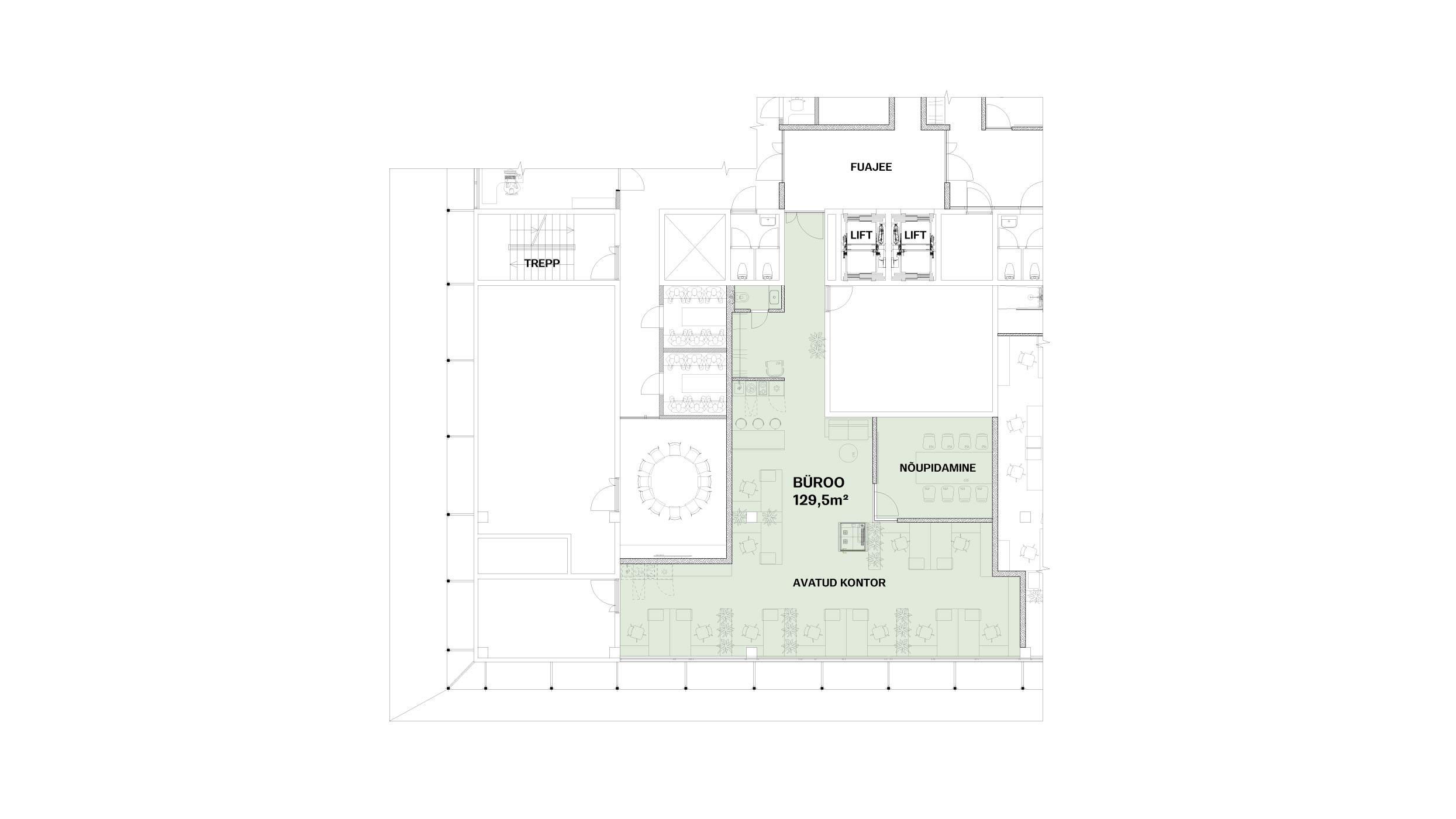
Merimetsa Pesa

8 korrus

Pindala:

129 m2

Hind:

15,9€/m2 / 1935€

Kui Sul tekkis küsimusi või soovid vaatama tulla, siis võta julgelt ühendust!

Martin Ühtegi

Üldine juhtimine

Tel: +372 5662 7639

Email:

Martinil 15-aastane kogemus kinnisvaraarenduses. Tema juhtimisel on edukalt arendatud 50 000 ruutmeetrit nii Rotermanni kvartalis kui ka kolmes Skyline tornis ning mitmes teises projektis. Martin on ekspert valdkonnas ning on aidanud kujundada ja luua kinnisvaraprojekte, mis jäävad meelde ning lisavad väärtust kogukonnale.